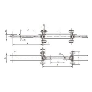
Dvojno artikulirana transportna veriga je glavni pogonski element lahkega zaprtega transportnega traku z vzmetnim podvozjem.